Detail Bak Kontrol Dwg. Gambar kerja detail bak kontrol file dwg, seluruh air limbah yang dihasilkan oleh kegiatan rumah dikumpulkan melalui saluran pipa pengumpul, selanjutnya dialirkan ke bak kontrol. File detail sumur resapan air hujan.dwg yang anda unduh (download) tersedia dalam. Air lemak akan masuk ke bilik pertama. Gambar kerja detail bak kontrol dan saluran file dwg bak kontrol merupakan bak kecil yang terpasang diantara pasangan saluran air kotor yang berguna sebagai pengontrol setiap saat jika saluran air kotor mengalami hambatan atau terjadi genangan air yang tidak diinginkan.
Gambar Kerja Skematik Diagram Air Hujan Gedung 3 Lantai From pinterest.com
Desain rumah sampah ini sebagai sub sub pengumpul sebelum di angkut ke tempat pembuangan akhir sampah. Grease and solid waste trap tank. Detail perpanjangan dinding tembok dwg. Itulah gambar kerja denah dan detail bak kontrol file autocad (.dwg) untuk membantu anda mengerjakan gambar desain arsitektur pada tahap 2 dimensi, semoga bermanfaat. Ruko glaze 1 blok c no 3 gading serpong, tangerang 15811 5).bekasi : Komplek sentra bisnis blok ss 5 no 9 harapan indah, bekasi 17132 6).bandung :
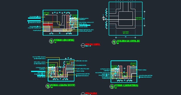
Gambar terdiri dari potongan a, potongan b, potongan c, bak kontrol terbuka, bak kontrol tertutup, dan bak kontrol grill.
Karya no 20 wijayakusuma, jakarta barat 11460 2).jakarta selatan : Apabila link eror atau file tidak bisa digunakan, silahkan laporkan dengan cara menulis. Karya no 20 wijayakusuma, jakarta barat 11460 2).jakarta selatan : Diakomodasi dan juga butuh ruang (bak kontrol, septictank, sumur resapan, dll), serta pemikiran bahwa instalasi perlu dirawat, diperbaiki, dan sebagainya. Photo tipikal bak pengumpul air limbah. Disarankan agar dimensi detail bak kontrol tidak berukuran lebih kecil dibandingkan saluran air yang dihubungkannya.
Source: indodesigncenter.com
Gambar 3.2 contoh konstruksi bak kontrol 76 gambar 3.3. Mari mengenal grease trap (bak lemak) lebih lanjut dan bagaimana cara kerjanya. Disarankan agar dimensi detail bak kontrol tidak berukuran lebih kecil dibandingkan saluran air yang dihubungkannya. Untuk mendownload file autocad 2d gambar diatas : Ukuran bak kontrol adalah disesuaikan dengan kebutuhan dari saluran air yang dibuat.
Source: indodesigncenter.com
Download gambar kerja detail septictank dan bak kontrol rumah 2 lantai download gambar kerja, download denah rumah 2 lantai lengkap dwg, kumpulan file dwg gratis, download gambar kerja dwg, download file autocad rumah 2 lantai lengkap, bestek rumah, gambar kerja rumah 2 lantai lengkap dwg, download gambar kerja rumah 2 lantai lengkap,. Komplek sentra bisnis blok ss 5 no 9 harapan indah, bekasi 17132 6).bandung : Tugas utama sebuah septic tank yaitu sebagai tempat peresapan kotoran ke tanah, mencegah bau yang tidak sedap dari kotoran manusia hingga beberapa waktu yang tidak bisa ditentukan. Gambar kerja detail bak kontrol file dwg, seluruh air limbah yang dihasilkan oleh kegiatan rumah dikumpulkan melalui saluran pipa pengumpul, selanjutnya dialirkan ke bak kontrol. Download sumur resapan gambar kerja autocad.
Source: jasadesainrumahjakarta.com
Gambar ini bertujuan hanya sekedar untuk memberikan referensi pembelajaran ataupun acuan gambar kerja. Gambar kerja detail bak kontrol dan saluran file dwg bak kontrol merupakan bak kecil yang terpasang diantara pasangan saluran air koto. Fungsi bak kontrol yaitu untuk mencegah sampah padat misalnya plastik, kaleng, kayu agar tidak masuk kedalam unit pengolahan limbah serta mencegah padatan yang tidak bisa. Sebuah grease trap biasanya terdiri dari dua sampai tiga buah bilik yang berhubungan. Karya no 20 wijayakusuma, jakarta barat 11460 2).jakarta selatan :
Source: designscad.com
Dalam pengolahan air kotor dan septik tank. Penyaluran air hujan di atap a) penyaluran air hujan pada atap. Fungsi bak kontrol yaitu untuk mencegah sampah padat misalnya plastik kaleng kayu agar tidak masuk kedalam unit pengolahan limbah serta mencegah padatan yang tidak bisa terurai misalnya. Dibilik ini, kotoran padat/ sisa makanan yang tercampur di air akan disaring atau diendapkan di dasar bilik. Gambar 3.5 bak pengumpul air limbah (tampak dari atas) dan panel kontrol pompa 78 gambar 3.5.
Source: kaulangora.com
Itulah gambar kerja denah dan detail bak kontrol file autocad (.dwg) untuk membantu anda mengerjakan gambar desain arsitektur pada tahap 2 dimensi, semoga bermanfaat. Desain rumah sampah ini sebagai sub sub pengumpul sebelum di angkut ke tempat pembuangan akhir sampah. Dalam pengolahan air kotor dan septik tank. Air lemak akan masuk ke bilik pertama. Gambar rangka kuda2 baja ringan koleksi gambar terbaik.
Source: jasadesainrumahjakarta.com
Dalam pengolahan air kotor dan septik tank. Desain rumah sampah ini sebagai sub sub pengumpul sebelum di angkut ke tempat pembuangan akhir sampah. Steel hangar portal frame roof ridge detail this is a cad dwg drawing for a steel hangar portal frame roof ridge detail. Ukuran bak kontrol adalah disesuaikan dengan kebutuhan dari saluran air yang dibuat. Detail sumur resapan contoh gambar kerja autocad file dwg.
Source: jagoankode.com
File detail sumur resapan air hujan.dwg yang anda unduh (download) tersedia dalam. File detail sumur resapan air hujan.dwg yang anda unduh (download) tersedia dalam. Fungsi bak kontrol yaitu untuk mencegah sampah padat misalnya plastik, kaleng, kayu agar tidak masuk kedalam unit pengolahan limbah serta mencegah padatan yang tidak bisa. Home informasi untuk detail bak kontrol informasi untuk detail bak kontrol. Detail sumur resapan air hujan.dwg adalah merupakan salah satu contoh yang ada pada umumnya diterapkan pada pekerjaan terkait.
Source: pinterest.com
Halo sobat blogger kali ini admin jagoan kode akan memberikan sharing file mengenai detail model resapan meski jika kalian cari diinternet maka sangat beragam sekali hasilnya. Photo tipikal bak pengumpul air limbah. Sebagai contoh lebar dari saluran air adalah. Hydraulic and sanitary installations dwg. Sebuah grease trap biasanya terdiri dari dua sampai tiga buah bilik yang berhubungan.
Source: pekerjaan-mekanikal-elektrikal.blogspot.com
Gambar kerja detail septictank dan bak kontrol dengan autocad,denah septictank dan bak kontrol. Lubang saluran pembuang harus diberikan sebuah saringan. Untuk mendownload file autocad 2d gambar diatas : Sebagai contoh lebar dari saluran air adalah. Dalam pengolahan air kotor dan septik tank.
Source: arsimedia.com
Detail saluran pembuangan/parit sumur resapan air hujan dan bak kontrol contoh gambar kerja autocad file dwg. Sebagai contoh lebar dari saluran air adalah. Semoga file ini bermanfaat dalam proses anda belajar mendesain, salam idc. Gambar rangka kuda2 baja ringan koleksi gambar terbaik. Detail kuda kuda baja wf dwg.
Source: indodesigncenter.com
Hydraulic and sanitary installations dwg. Gambar 3.2 contoh konstruksi bak kontrol 76 gambar 3.3. Halo sobat blogger kali ini admin jagoan kode akan memberikan sharing file mengenai detail model resapan meski jika kalian cari diinternet maka sangat beragam sekali hasilnya. Detail sumur resapan contoh gambar kerja autocad file dwg. Gambar kerja detail bak kontrol dan saluran file dwg bak kontrol merupakan bak kecil yang terpasang diantara pasangan saluran air koto.
Source: id.pinterest.com
Diakomodasi dan juga butuh ruang (bak kontrol, septictank, sumur resapan, dll), serta pemikiran bahwa instalasi perlu dirawat, diperbaiki, dan sebagainya. Gambar kerja detail septictank dan bak kontrol dengan autocad,denah septictank dan bak kontrol. Gambar 3.2 contoh konstruksi bak kontrol 76 gambar 3.3. Download detail parit selokan pembuangan air kotor.halo teman teman semua bertemu lagi dengan admin jagoan kode seperti biasanya pada hari ini admin akan membagikan sedikit sharing file mengenai detail parit atau yang biasa disebut saluran. Denah dan detail bak kontrol detail khusus (pagar) itulah gambar kerja rumah 2 lantai file autocad (.dwg) untuk membantu anda mengerjakan gambar desain arsitektur pada tahap 2 dimensi, semoga bermanfaat
Source: id.scribd.com
Detail kuda kuda baja wf dwg. Typical detail for a steel frame ridge ( apex ) roof system with sandwich panels roof, ridge flashing, support on galvanized z profile purlins. Untuk mendownload file autocad 2d gambar diatas : Dasar bak kontrol harus lebih dalam dari dasar saluran air kotor yang ada dimaksudkan agar. Disarankan agar dimensi detail bak kontrol tidak berukuran lebih kecil dibandingkan saluran air yang dihubungkannya.
Source: pinterest.com
Gambar 3.5 bak pengumpul air limbah (tampak dari atas) dan panel kontrol pompa 78 gambar 3.5. Dalam pengolahan air kotor dan septik tank. Detail sumur resapan contoh gambar kerja autocad file dwg. Denah dan detail bak kontrol detail khusus (pagar) itulah gambar kerja rumah 2 lantai file autocad (.dwg) untuk membantu anda mengerjakan gambar desain arsitektur pada tahap 2 dimensi, semoga bermanfaat Apabila link eror atau file tidak bisa digunakan, silahkan laporkan dengan cara menulis.
Source: taktiktekno.com
Download detail parit selokan pembuangan air kotor.halo teman teman semua bertemu lagi dengan admin jagoan kode seperti biasanya pada hari ini admin akan membagikan sedikit sharing file mengenai detail parit atau yang biasa disebut saluran. Sebab kenyataan bahwa sesuai dengan perkembangan zaman, desain yang sangat bagus akan admin sajikan untuk anda. Karya no 20 wijayakusuma, jakarta barat 11460 2).jakarta selatan : File detail sumur resapan air hujan.dwg yang anda unduh (download) tersedia dalam. Hydraulic and sanitary installations dwg.
Source: bibliocad.com
Kunjungi website jasa desain rumah idc. 1082018 gambar kerja detail bak kontrol file dwg seluruh air baca selengkapnya. Download detail bak kontrol format dwg autocad. Halo sobat blogger kali ini admin jagoan kode akan memberikan sharing file mengenai detail model resapan meski jika kalian cari diinternet maka sangat beragam sekali hasilnya. Gambar kerja detail septictank dan bak kontrol dengan autocad,denah septictank dan bak kontrol.
Source: indiearchitect.com
Aug 10 2018 gambar kerja detail bak kontrol file dwg seluruh air limbah yang dihasilkan oleh kegiatan rumah dikumpulkan melalui saluran pipa pengumpul. Gambar septictank dan resapan dwg. Download detail bak kontrol format dwg autocad. Gambar kerja detail septictank dan bak kontrol dengan autocad,denah septictank dan bak kontrol. Gambar kerja detail bak kontrol dan saluran file dwg bak kontrol merupakan bak kecil yang terpasang diantara pasangan saluran air kotor yang berguna sebagai pengontrol setiap saat jika saluran air kotor mengalami hambatan atau terjadi genangan air yang tidak diinginkan.
Source: indodesigncenter.com
Diakomodasi dan juga butuh ruang (bak kontrol, septictank, sumur resapan, dll), serta pemikiran bahwa instalasi perlu dirawat, diperbaiki, dan sebagainya. Ruko glaze 1 blok c no 3 gading serpong, tangerang 15811 5).bekasi : Home informasi untuk detail bak kontrol informasi untuk detail bak kontrol. Ok, inilah gambar kanopi terbaru yang memiliki desain kekinian saat ini. Fungsi bak kontrol yaitu untuk mencegah sampah padat misalnya plastik, kaleng, kayu agar tidak masuk kedalam unit pengolahan limbah serta mencegah padatan yang tidak bisa.
This site is an open community for users to do sharing their favorite wallpapers on the internet, all images or pictures in this website are for personal wallpaper use only, it is stricly prohibited to use this wallpaper for commercial purposes, if you are the author and find this image is shared without your permission, please kindly raise a DMCA report to Us.
If you find this site serviceableness, please support us by sharing this posts to your own social media accounts like Facebook, Instagram and so on or you can also bookmark this blog page with the title detail bak kontrol dwg by using Ctrl + D for devices a laptop with a Windows operating system or Command + D for laptops with an Apple operating system. If you use a smartphone, you can also use the drawer menu of the browser you are using. Whether it’s a Windows, Mac, iOS or Android operating system, you will still be able to bookmark this website.





