Detail Pondasi Pagar. Contoh pagar rumah minimalis pdf dan dwg tutorial autocad x sumber : Dipasang di atas pondasi strauss/sumuran atau di atas pondasi batu kali. Pekerjaan cor beton pondasi pagar brc. Approval material yang akan digunakan.
MENGHITUNG KEBUTUHAN MATERIAL PAGAR Struktur From struktur-rumah.com
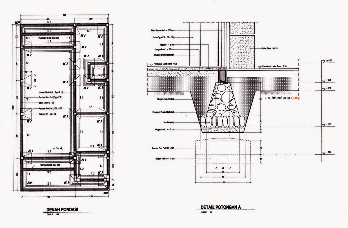
Pekerjaan cor beton pondasi pagar brc. Gambar detail pagar.dwg adalah merupakan salah satu contoh yang ada pada umumnya diterapkan pada pekerjaan terkait. Pondasi pagar berukuran lebar tapak 70 cm, lebar atas 30 cm, tinggi 60 cm, dan panjang 38,5 cm. Desain rumah dengan gaya minimalis diprediksi pada tahun 92 sudah tumbuh, tetapi belum sengetren saai ini. Namun, detail desain yang ideal untuk pagar kayu seperti ini akan membutuhkan beberapa perhitungan. Dalam pekerjaan pembuatan pagar brc terdiri dari 4 item pekerjaan antara lain :
Kumpulan rab dan gambar sekolah tk sd pagar rkb daftar gambar gambar terdiri dari detail pagar 1 dan 2 rencana pondasi sloff dan kolom tampak depan potongan a a detail pagar brc tampak depan pagar brc detail pondasi tapak dan kolom detail pintu brc dan sliding detail pondasi bata detail balok pinggang dan ringbalk detail.
Namun, detail desain yang ideal untuk pagar kayu seperti ini akan membutuhkan beberapa perhitungan. Namun, detail desain yang ideal untuk pagar kayu seperti ini akan membutuhkan beberapa perhitungan. Gambar detail pagar.dwg adalah merupakan salah satu contoh yang ada pada umumnya diterapkan pada pekerjaan terkait. Dapat digunakan apabila ingin membentengi lahan untuk Desain pondasi pagar panel beton sangat berpengaruh terhadap kekokohan konstruksi pagar. Pondasi pagar berukuran lebar tapak 70 cm, lebar atas 30 cm, tinggi 60 cm, dan panjang 38,5 cm.
Source: interiordapurterminimalistype36.blogspot.com
104 gambar pondasi rumah minimalis sederhana. Detail pondasi ini berguna untuk melengkapi sebagian gambar kerja suatu bangunan. Namun, detail desain yang ideal untuk pagar kayu seperti ini akan membutuhkan beberapa perhitungan. Desain gerbang dan pagar desain perumahan 2 lantai desain pnael desain rumah 6 ruangan desain rumah tinggal desain stadion sepakbola 3d detail atap detail dapur detail pergola dan pond kolam detail pintu, jendela dan kusen detail plafond detail pola lantai detail pondasi jembatan furniture lengkap detail kamar mandi desain kantor bangunan. Gaya terbaru 37+ mewarnai hd.
Source: bukalapak.com
Selain itu pagar dapat memperindah suatu banguna rumah. Sampai saat ini perkembangan ide. Fungsi pagar dan gerbang sangatlah penting, terutama untuk pembatas dan pengaman rumah. Pagar panel yang miring sebenarnya bukan karena faktor material pagarnya namun karena proses pemasangan pagar yang tidak melalui perencanaan pondasi yang benar. Contoh pagar rumah minimalis pdf dan dwg tutorial autocad x sumber :
Source: content.co.id
Detail pondasi ini berguna untuk melengkapi sebagian gambar kerja suatu bangunan. Namun, detail desain yang ideal untuk pagar kayu seperti ini akan membutuhkan beberapa perhitungan. Pekerjaan cor beton pondasi pagar brc. Download gambar kerja detail pagar dan gerbang dwg autocad, dalam mendesain sebuah rumah tidak sedap dipandang jika tidak adanya pagar dan gerbang. Fungsi pagar dan gerbang sangatlah penting, terutama untuk pembatas dan pengaman rumah.
Source: panel-beton-precast.blogspot.com
104 gambar pondasi rumah minimalis sederhana. 104 gambar pondasi rumah minimalis sederhana. Selain itu pagar dapat memperindah suatu banguna rumah. 25+ baru model pagar minimalis bulat, model pagar minimalis. Pekerjaan cor beton pondasi pagar brc.
Source: edwardpgultom.blogspot.com
Pondasi ini masih digunakan, karena selain kuat, pondasi ini pun masih termasuk murah. Video proses pembuatan pondasi pagar rumah sederhana kami dari channel rumah idaman aa, video ini di awali dari pembuatan parit pondasi pagar rumah, kemudian. Terbaru 21+ pesanggrahan south jakarta. Kumpulan rab dan gambar sekolah tk sd pagar rkb daftar gambar gambar terdiri dari detail pagar 1 dan 2 rencana pondasi sloff dan kolom tampak depan potongan a a detail pagar brc tampak depan pagar brc detail pondasi tapak dan kolom detail pintu brc dan sliding detail pondasi bata detail balok pinggang dan ringbalk detail. Gambar detail pondasi batu belah adalah gambar yang memuat keterangan mengenai bentuk ,ukuran, dan material yang digunakan dalam pelaksanaan pekerjaan pondasi batu belah.
Source: primasuperindo.com
Gaya terbaru 37+ mewarnai hd. Ada berbagai macam jenis pagar yang anda dapat terapkan. Pondasi ini masih digunakan, karena selain kuat, pondasi ini pun masih termasuk murah. Dapat digunakan apabila ingin membentengi lahan untuk Contoh desain pagar kayu minimalis terbaru.
Source: pagarbetonsemarang.com
Download (.dwg) alternative link download. Pondasi pelat (plate foundation) pondasi yang termasuk jenis pondasi dangkal, yaitu : Download detail pondasi bore pile dwg, download rumah type 36 dwg, download desain rumah autocad, bestek rumah type 60, download gambar kerja kolam renang dwg, dwg rumah 2 lantai, gambar kerja rumah type 70 dwg, gambar kerja rumah lengkap dwg, download file autocad rumah, download gambar kerja rumah, download detail pondasi. Kumpulan rab dan gambar sekolah tk sd pagar rkb daftar gambar gambar terdiri dari detail pagar 1 dan 2 rencana pondasi sloff dan kolom tampak depan potongan a a detail pagar brc tampak depan pagar brc detail pondasi tapak dan kolom detail pintu brc dan sliding detail pondasi bata detail balok pinggang dan ringbalk detail. 25+ baru model pagar minimalis bulat, model pagar minimalis.
Source: quotes2019d.blogspot.com
Download detail pondasi bore pile dwg, download rumah type 36 dwg, download desain rumah autocad, bestek rumah type 60, download gambar kerja kolam renang dwg, dwg rumah 2 lantai, gambar kerja rumah type 70 dwg, gambar kerja rumah lengkap dwg, download file autocad rumah, download gambar kerja rumah, download detail pondasi. Desain gerbang dan pagar desain perumahan 2 lantai desain pnael desain rumah 6 ruangan desain rumah tinggal desain stadion sepakbola 3d detail atap detail dapur detail pergola dan pond kolam detail pintu, jendela dan kusen detail plafond detail pola lantai detail pondasi jembatan furniture lengkap detail kamar mandi desain kantor bangunan. Pondasi pelat (plate foundation) pondasi yang termasuk jenis pondasi dangkal, yaitu : 104 gambar pondasi rumah minimalis sederhana. Namun, detail desain yang ideal untuk pagar kayu seperti ini akan membutuhkan beberapa perhitungan.
Source: pinterest.com
Sesuai dengan judul postingan kali ini adalah menghitung kebutuhan material pagar, adalah permintaan dari pembaca yang minta bantuan me. Download (.dwg) alternative link download. Vb = (a +b) x h/2 x p Video proses pembuatan pondasi pagar rumah sederhana kami dari channel rumah idaman aa, video ini di awali dari pembuatan parit pondasi pagar rumah, kemudian. Gaya terbaru 23+ detail pagar rumah dwg.
Source: muhibaraya.com
Desain gerbang dan pagar desain perumahan 2 lantai desain pnael desain rumah 6 ruangan desain rumah tinggal desain stadion sepakbola 3d detail atap detail dapur detail pergola dan pond kolam detail pintu, jendela dan kusen detail plafond detail pola lantai detail pondasi jembatan furniture lengkap detail kamar mandi desain kantor bangunan. Dipasang di atas pondasi strauss/sumuran atau di atas pondasi batu kali. Dalam desain bangunan, bagian pagar sering tidak terlihat dengan jelas sehingga diperlukan gambar detail tambahan. 25+ baru model pagar minimalis bulat, model pagar minimalis. Selain itu pagar dapat memperindah suatu banguna rumah.
Source: pagarprecastbetonsidoarjo.wordpress.com
Pondasi pelat (plate foundation) pondasi yang termasuk jenis pondasi dangkal, yaitu : Sesuai dengan judul postingan kali ini adalah menghitung kebutuhan material pagar, adalah permintaan dari pembaca yang minta bantuan me. Dalam pekerjaan pembuatan pagar brc terdiri dari 4 item pekerjaan antara lain : Contoh desain pagar kayu minimalis terbaru. Video proses pembuatan pondasi pagar rumah sederhana kami dari channel rumah idaman aa, video ini di awali dari pembuatan parit pondasi pagar rumah, kemudian.
Source: rumahminimalisoi.com
Berikut ini adalah contoh gambar nya. Tren gaya 20+ component sketchup. Ga mau ribet dan pusing bikin gambar kerja. Pondasi ini masih digunakan, karena selain kuat, pondasi ini pun masih termasuk murah. Contoh desain pagar kayu minimalis terbaru.
Source: slideshare.net
Terbaru 21+ pesanggrahan south jakarta. Desain pondasi pagar panel beton sangat berpengaruh terhadap kekokohan konstruksi pagar. Dipasang di atas pondasi strauss/sumuran atau di atas pondasi batu kali. Pondasi ini masih digunakan, karena selain kuat, pondasi ini pun masih termasuk murah. Approval material yang akan digunakan.
Source: bekhaz.com
Sampai saat ini perkembangan ide. Contoh pagar rumah minimalis pdf dan dwg tutorial autocad x sumber : Academia.edu is a platform for academics to share research papers. Ada berbagai macam jenis pagar yang anda dapat terapkan. Pekerjaan cor beton pondasi pagar brc.
Source: jurnalarsitek.blogspot.com
Dalam memahami gambar detail pondasi batu belah,ada beberapa hal yang perlu kita perhatikan. Contoh desain pagar kayu minimalis terbaru. Desain gerbang dan pagar desain perumahan 2 lantai desain pnael desain rumah 6 ruangan desain rumah tinggal desain stadion sepakbola 3d detail atap detail dapur detail pergola dan pond kolam detail pintu, jendela dan kusen detail plafond detail pola lantai detail pondasi jembatan furniture lengkap detail kamar mandi desain kantor bangunan. Download (.dwg) alternative link download. 25+ baru model pagar minimalis bulat, model pagar minimalis.
Source: struktur-rumah.com
Dipasang di atas pondasi strauss/sumuran atau di atas pondasi batu kali. Sebagian orang menganggap bahwa pagar menjadi elemen penting untuk memaksimalkan tampilan dari eksterior. Approval material yang akan digunakan. Tren gaya 20+ component sketchup. Dalam memahami gambar detail pondasi batu belah,ada beberapa hal yang perlu kita perhatikan.
Source: belajartekniksipil9.blogspot.com
Pagar rumah mempunyai beberapa fungsi sebagai gerbang masuk dan pembatas area rumah, mempercantik tampilan rumah dari luar, sekaligus sebagai benteng rumah anda. Sesuai dengan judul postingan kali ini adalah menghitung kebutuhan material pagar, adalah permintaan dari pembaca yang minta bantuan me. Pondasi pagar berukuran lebar tapak 70 cm, lebar atas 30 cm, tinggi 60 cm, dan panjang 38,5 cm. Dalam memahami gambar detail pondasi batu belah,ada beberapa hal yang perlu kita perhatikan. Biasanya pondasi ini digunakan untuk bangunan rumah sangat sederhana atau bangunan rumah tinggal hanya 1 lantai.
Source: astudioarchitect.wordpress.com
Biasanya pondasi ini digunakan untuk bangunan rumah sangat sederhana atau bangunan rumah tinggal hanya 1 lantai. Untuk menciptakan bangunan yang kuat. Gaya terbaru 23+ detail pagar rumah dwg. Gaya terbaru 37+ mewarnai hd. Sesuai dengan judul postingan kali ini adalah menghitung kebutuhan material pagar, adalah permintaan dari pembaca yang minta bantuan me.
This site is an open community for users to share their favorite wallpapers on the internet, all images or pictures in this website are for personal wallpaper use only, it is stricly prohibited to use this wallpaper for commercial purposes, if you are the author and find this image is shared without your permission, please kindly raise a DMCA report to Us.
If you find this site adventageous, please support us by sharing this posts to your own social media accounts like Facebook, Instagram and so on or you can also save this blog page with the title detail pondasi pagar by using Ctrl + D for devices a laptop with a Windows operating system or Command + D for laptops with an Apple operating system. If you use a smartphone, you can also use the drawer menu of the browser you are using. Whether it’s a Windows, Mac, iOS or Android operating system, you will still be able to bookmark this website.


