Detail Bak Kontrol. Dari sumur resapan kemudian diberikan saluran pembuangan keluar yang terhubung dengan tanah. Berdasarkan bentuknya, tutup bak ini dibagi menjadi dua macam, yaitu tutup bak dengan bentuk lingkaran dan tutup bak dengan bentuk kontak. Jika limbah grease ini tidak tidak ditangani secara tepat, akan menyebabkan: Gambar yang baru selalu diunggah oleh anggota yang aktif setiap harinya, pilih koleksi gambar lainnya dibawah ini sesuai dengan kebutuhan untuk mulai mengunduh gambar.
24.Detail Bak Kontrol From scribd.com
4 secara umum rumus perhitungan volume pekerjaan adalah sebagai berikut : Tugas utama sebuah septic tank yaitu sebagai tempat peresapan kotoran ke tanah, mencegah bau yang tidak sedap dari kotoran manusia hingga beberapa waktu yang tidak bisa ditentukan. Detail saluran pembuangan/parit sumur resapan air hujan dan bak kontrol contoh gambar kerja autocad file dwg. Kehadiran tutup bak sebagai saluran drainase sangatlah penting, terutama di daerah yang minim daerah resapan air, seperti pusat kota. Dengan mengusung motto “ kepuasan pelanggan menjadi prioritas utama kami”. Bak kontrol kemudian dihubungan ke sumur resapan melalui saluran masuk sumur resapan.
Lubang saluran pembuang harus diberikan sebuah saringan.
Detail gambar kerja detail bak kontrol dan saluran file dwg lingkungan binaan perbaikan arsitek, klik untuk melihat koleksi gambar lain di kibrispdr.org Sparing harus dibuat melebihi rencana peil lantai beton & tebal beton (yang diatas plat = 25 cm, sedang yang dibawah plat = 15 cm). 22 rows detail bak kontrol di gambar desain arsitek. Archimax architect berkantor di nganjuk, kediri, dan juga melayani jasa desain bangunan secara 100% online untuk seluruh. Area kloset, wastafel, dan shower. Gambar yang baru selalu diunggah oleh anggota yang aktif setiap harinya, pilih koleksi gambar lainnya dibawah ini sesuai dengan kebutuhan untuk mulai mengunduh gambar.
Source: scribd.com
Begini cara peletakan dan konstruksi yang tepat dalam membuat bak kontrol. Tugas utama sebuah septic tank yaitu sebagai tempat peresapan kotoran ke tanah, mencegah bau yang tidak sedap dari kotoran manusia hingga beberapa waktu yang tidak bisa ditentukan. Diakomodasi dan juga butuh ruang (bak kontrol, septictank, sumur resapan, dll), serta pemikiran bahwa instalasi perlu dirawat, diperbaiki, dan sebagainya. Archimax architect berkantor di nganjuk, kediri, dan juga melayani jasa desain bangunan secara 100% online untuk seluruh. Bak kontrol kemudian dihubungan ke sumur resapan melalui saluran masuk sumur resapan.
Source: kaulangora.com
Diakomodasi dan juga butuh ruang (bak kontrol, septictank, sumur resapan, dll), serta pemikiran bahwa instalasi perlu dirawat, diperbaiki, dan sebagainya. Tetapi ukuran tersebut tentu saja bukan suatu acuan yang pasti karena tergantung juga dari ukuran saluran yang dihubungkan dan beberapa hal lain sesuai kebutuhan. Tugas utama sebuah septic tank yaitu sebagai tempat peresapan kotoran ke tanah, mencegah bau yang tidak sedap dari kotoran manusia hingga beberapa waktu yang tidak bisa ditentukan. 4 secara umum rumus perhitungan volume pekerjaan adalah sebagai berikut : Penyaluran air hujan di atap a) penyaluran air hujan pada atap.
Source: sekarjagad77.blogspot.com
Bak kontrol kemudian dihubungan ke sumur resapan melalui saluran masuk sumur resapan. Tugas utama sebuah septic tank yaitu sebagai tempat peresapan kotoran ke tanah, mencegah bau yang tidak sedap dari kotoran manusia hingga beberapa waktu yang tidak bisa ditentukan. Salah satu contoh tipikal konstruksi bak pengumpul. Penyaluran air hujan di atap a) penyaluran air hujan pada atap. 4 secara umum rumus perhitungan volume pekerjaan adalah sebagai berikut :
Source: pusatantipetir.com
Jelajahi koleksi gambar, foto, dan wallpaper kami yang sangat luar biasa. Gambar 3.5 bak pengumpul air limbah (tampak dari atas) dan panel kontrol pompa 78 gambar 3.5. Grease/lemak dari dapur adalah salah satu limbah domestik yang tidak bisa terurai secara alami. Bak kontrol kemudian dihubungan ke sumur resapan melalui saluran masuk sumur resapan. Download detail parit selokan pembuangan air kotor.halo teman teman semua bertemu lagi dengan admin jagoan kode seperti biasanya pada hari ini admin akan membagikan sedikit sharing file mengenai detail parit atau yang biasa disebut saluran.
Source: pusatantipetir.com
Gambar 3.5 bak pengumpul air limbah (tampak dari atas) dan panel kontrol pompa 78 gambar 3.5. Gambar ini bertujuan hanya sekedar untuk memberikan referensi pembelajaran ataupun acuan gambar kerja. 4 secara umum rumus perhitungan volume pekerjaan adalah sebagai berikut : Archimax architect berkantor di nganjuk, kediri, dan juga melayani jasa desain bangunan secara 100% online untuk seluruh. Desain mata air pompa (map) dalam perhitungan volume pekerjaan perencanaan air baku secara umum dapat.
Source: indodesigncenter.com
Bak kontrol kemudian dihubungan ke sumur resapan melalui saluran masuk sumur resapan. Gambar ini bertujuan hanya sekedar untuk memberikan referensi pembelajaran ataupun acuan gambar kerja. Salah satu contoh tipikal konstruksi bak pengumpul. Bak kontrol atau beton manhole juga sering ditempatkan pada saluran air. Diakomodasi dan juga butuh ruang (bak kontrol, septictank, sumur resapan, dll), serta pemikiran bahwa instalasi perlu dirawat, diperbaiki, dan sebagainya.
Source: arfaautama.blogspot.com
Apabila memasuki musim penghujan bak ini dapat difungsikan sebagai upaya normalisasi dan pembersihan pada saluran air agar tidak terjadi genangan. Salah satu contoh tipikal konstruksi bak pengumpul. Kastuari merupakan perusahaan yang bergerak dibidang jasa desain dan konstruksi bangunan profesional. Tags bentuk sumur resapan , manfaat sumur resapan , resapan air , sumur resapan Download detail parit selokan pembuangan air kotor.halo teman teman semua bertemu lagi dengan admin jagoan kode seperti biasanya pada hari ini admin akan membagikan sedikit sharing file mengenai detail parit atau yang biasa disebut saluran.
Source: scribd.com
Kehadiran tutup bak sebagai saluran drainase sangatlah penting, terutama di daerah yang minim daerah resapan air, seperti pusat kota. Benar perlu gambar penjelas dan gambar detail sehingga tidak menggunakan asumsi sendiri dari estimator. Juga mengerjakan beberapa jasa perencanaan dan pelaksanaan fisik, seperti arsitektur, struktur hingga mekanikal elektrikal. Photo tipikal bak pengumpul air limbah. Download detail parit selokan pembuangan air kotor.halo teman teman semua bertemu lagi dengan admin jagoan kode seperti biasanya pada hari ini admin akan membagikan sedikit sharing file mengenai detail parit atau yang biasa disebut saluran.
Source: gambardesainarsitek.com
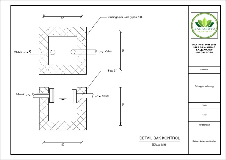
Juga mengerjakan beberapa jasa perencanaan dan pelaksanaan fisik, seperti arsitektur, struktur hingga mekanikal elektrikal. Bak kontrol umumnya dibuat dengan dimensi 50 x 50 cm dengan kedalaman 50 cm sampai 60 cm. Tags bentuk sumur resapan , manfaat sumur resapan , resapan air , sumur resapan Gambar ini bertujuan hanya sekedar untuk memberikan referensi pembelajaran ataupun acuan gambar kerja. 4 secara umum rumus perhitungan volume pekerjaan adalah sebagai berikut :
Source: scribd.com
Detail saluran pembuangan/parit sumur resapan air hujan dan bak kontrol contoh gambar kerja autocad file dwg. Bak kontrol kemudian dihubungan ke sumur resapan melalui saluran masuk sumur resapan. Tetapi ukuran tersebut tentu saja bukan suatu acuan yang pasti karena tergantung juga dari ukuran saluran yang dihubungkan dan beberapa hal lain sesuai kebutuhan. Dari sumur resapan kemudian diberikan saluran pembuangan keluar yang terhubung dengan tanah. Apakah anda mencari gambar tentang gambar detail bak kontrol air hujan?
Source: indodesigncenter.com
Download detail bak kontrol format dwg autocad. Gambar 3.2 contoh konstruksi bak kontrol 76 gambar 3.3. Tugas utama sebuah septic tank yaitu sebagai tempat peresapan kotoran ke tanah, mencegah bau yang tidak sedap dari kotoran manusia hingga beberapa waktu yang tidak bisa ditentukan. Detail saluran pembuangan/parit sumur resapan air hujan dan bak kontrol contoh gambar kerja autocad file dwg. Tags bentuk sumur resapan , manfaat sumur resapan , resapan air , sumur resapan
Source: bibliocad.com
Tetapi ukuran tersebut tentu saja bukan suatu acuan yang pasti karena tergantung juga dari ukuran saluran yang dihubungkan dan beberapa hal lain sesuai kebutuhan. Kadang ada juga bak kontrol yang ukurannya sampai 1 x 1 m. Jelajahi koleksi gambar, foto, dan wallpaper kami yang sangat luar biasa. Benar perlu gambar penjelas dan gambar detail sehingga tidak menggunakan asumsi sendiri dari estimator. Archimax architect juga menyediakan layanan jasa arsitek desain rumah, jasa arsitek rumah mewah, jasa arsitek desain rumah modern, rumah klasik, minimalis, tropis, industrial, mediteran, american, morrocan, scandinavian dll.
Source: indodesigncenter.com
Salah satu contoh tipikal konstruksi bak pengumpul. Detail saluran pembuangan/parit sumur resapan air hujan dan bak kontrol contoh gambar kerja autocad file dwg. Dari sumur resapan kemudian diberikan saluran pembuangan keluar yang terhubung dengan tanah. 4 secara umum rumus perhitungan volume pekerjaan adalah sebagai berikut : Desain mata air pompa (map) dalam perhitungan volume pekerjaan perencanaan air baku secara umum dapat.
Source: jasadesainrumahjakarta.com
Berdasarkan bentuknya, tutup bak ini dibagi menjadi dua macam, yaitu tutup bak dengan bentuk lingkaran dan tutup bak dengan bentuk kontak. Dengan mengusung motto “ kepuasan pelanggan menjadi prioritas utama kami”. Bak kontrol kemudian dihubungan ke sumur resapan melalui saluran masuk sumur resapan. File cad yang saya bagikan kali ini menyajikan gambar detail bak kontrol. Jika limbah grease ini tidak tidak ditangani secara tepat, akan menyebabkan:
Source: id.pinterest.com
Lubang saluran pembuang harus diberikan sebuah saringan. Gambar 3.2 contoh konstruksi bak kontrol 76 gambar 3.3. Gambar terdiri dari potongan a, potongan b, potongan c, bak kontrol terbuka, bak kontrol tertutup, dan bak kontrol grill. 4 secara umum rumus perhitungan volume pekerjaan adalah sebagai berikut : Tags bentuk sumur resapan , manfaat sumur resapan , resapan air , sumur resapan
Source: kotakcad.tumblr.com
Metode tachimetri dan prosedur pengukuran detail situasi 6. Metode tachimetri dan prosedur pengukuran detail situasi 6. 22 rows detail bak kontrol di gambar desain arsitek. Bak kontrol kemudian dihubungan ke sumur resapan melalui saluran masuk sumur resapan. Juga mengerjakan beberapa jasa perencanaan dan pelaksanaan fisik, seperti arsitektur, struktur hingga mekanikal elektrikal.
Source: indodesigncenter.com
Detail saluran pembuangan/parit sumur resapan air hujan dan bak kontrol contoh gambar kerja autocad file dwg. Referensi gambar desain rumah, villa,. Selain itu, penempatan bak kontrol di dalam saluran drainase tidak boleh dilakukan asal. Salah satu contoh tipikal konstruksi bak pengumpul. Bak kontrol umumnya dibuat dengan dimensi 50 x 50 cm dengan kedalaman 50 cm sampai 60 cm.
Source: scribd.com
Apakah anda mencari gambar tentang gambar detail bak kontrol air hujan? Lubang saluran pembuang harus diberikan sebuah saringan. Area kloset, wastafel, dan shower. Gambar 3.2 contoh konstruksi bak kontrol 76 gambar 3.3. Detail gambar kerja detail bak kontrol dan saluran file dwg lingkungan binaan perbaikan arsitek, klik untuk melihat koleksi gambar lain di kibrispdr.org
This site is an open community for users to do submittion their favorite wallpapers on the internet, all images or pictures in this website are for personal wallpaper use only, it is stricly prohibited to use this wallpaper for commercial purposes, if you are the author and find this image is shared without your permission, please kindly raise a DMCA report to Us.
If you find this site convienient, please support us by sharing this posts to your own social media accounts like Facebook, Instagram and so on or you can also save this blog page with the title detail bak kontrol by using Ctrl + D for devices a laptop with a Windows operating system or Command + D for laptops with an Apple operating system. If you use a smartphone, you can also use the drawer menu of the browser you are using. Whether it’s a Windows, Mac, iOS or Android operating system, you will still be able to bookmark this website.


