Denah Rumah Type 150 2 Lantai. Rumah type 36 dengan ruang makan outdoor. Biasanya, mereka yang ingin membangun rumah bertema klasik ini menggambarkan karakter dari sang pemilik rumah. Sesuai namanya, rumah tipe 36 memiliki luas 36m2. Sebagai contoh, di sini ada desain rumah 1 lantai dan 2 lantai.
Denah Rumah Minimalis 1 Lantai Type 50 Desain Rumah From expodesainrumah.blogspot.com
Sketsa rumah dengan biaya 100 150 juta desain rumah minimalis via rumah.spacehistories.com. Denah gambar rumah type 150 ukuran 12 x 20 meter. Kami memiliki 493 rumah untuk dijual untuk rumah minimalis type 150 2 lantai, harga mulai dari rp 327,000,011 Desain rumah minimalis 2 lantai luas tanah 150 m2. Denah rumah modern 2 lantai, type 225 m2, desain fasad minimalis tropis, lahan 9x22 m2, taman dibelakang rumah & interior living room. Denah rumah type 150 2 lantai dwg.
30 desain rumah minimalis 1 lantai 3 kamar tidur dan sumber :
Desain rumah 1 lantai type 150 ini kami rancang pada lahan dengan ukuran lebar muka 12 x 20 meter, dengan posisi level lahan lebih tinggi dari jalan sekitar 60 cm, serta ruangan utama yaitu 3 kamar tidur, sesuai permintaan dari klien kami bp agus yang berlokasi di madiun. Ada juga desain 2 kamar, 3 kamar, dan 4 kamar. Segala hal itu bisa berbeda tergantung dari kepentingan dari turunan adamnya. Berjenis jenis arti yan99 bisa pengunjung. Selain murah , mempunyai rumah dengan luas lahan sempit ini juga menciptakan penghuninya semakin kreatif menciptakan suasana yang nyaman dan menyenangkan dengan banyak sekali desain. Desain rumah 1 lantai type 150 ini kami rancang pada lahan dengan ukuran lebar muka 12 x 20 meter, dengan posisi level lahan lebih tinggi dari jalan sekitar 60 cm, serta ruangan utama yaitu 3 kamar tidur, sesuai permintaan dari klien kami bp agus yang berlokasi di madiun.
Source: homsweetimpian.blogspot.com
Gambar dibawah ini mencakup gambar arsitektur,mekanikal elektrikal dan detail : Selain murah , mempunyai rumah dengan luas lahan sempit ini juga menciptakan penghuninya semakin kreatif menciptakan suasana yang nyaman dan menyenangkan dengan banyak sekali desain. Denah rumah tinggal 2 lantai | modern tropis, menempati lahan berukuran 9 m x 22 m dengan bentuk fasad modern tropis. Desain rumah type 60 model minimalis sederhana modern terbaru. Sesuai namanya, rumah tipe 36 memiliki luas 36m2.
Source: homsweetimpian.blogspot.com
Desain rumah 1 lantai type 150 ukuran lebar 12 x 20 meter. Desain rumah minimalis 2 lantai luas tanah 150 m2. Pada bagian belakang rumah ditempatkan ruang terbuka sebagai taman yang berhadapan langsung. 4 gambar sketsa denah rumah 1 lantai 4 kamar tidur 1000 gambar via rumahminimalisanda.com. Ukuran lahan 11 x 16 m2, dengan 3 kamar tidur + 3 toilet.
Source: griyadesainrumah.com
Contoh desain rumah minimalis 2 lantai type 150 desainrumahkitanet via desainrumahkita.net. Kami memiliki 461 rumah untuk dijual untuk rumah minimalis type 150 2 lantai harga mulai dari rp 285000000. Minimalistischer grundriss 2 geschossflache 125m2 die gesamtflache des gebaudes betragt 138m2 125m2 138m2 balkondiy balkonmo denah. Misal 3 lantai dan seterusnya, karena akan memiliki nilai investasi rumah yang cukup tinggi di masa depan. Desain rumah luas 150 m2.
Source: simomot.com
Desain rumah 1 lantai type 150 ini kami rancang pada lahan dengan ukuran lebar muka 12 x 20 meter, dengan posisi level lahan lebih tinggi dari jalan sekitar 60 cm, serta ruangan utama yaitu 3 kamar tidur, sesuai permintaan dari klien kami bp agus yang berlokasi di madiun. Denah gambar rumah type 150 ukuran 12 x 20 meter. Denah rumah type 150 ukuran 12 x 20 meter 3 kamar tidur. Luas bangunan 180 m2 luas tanah 120 m2 4 kamar tidur 2 kamar di lantai 1 2 kamar di lantai 2 2 kamar mandi ruang tamu akses. Segala hal itu bisa berbeda tergantung dari kepentingan dari turunan adamnya.
Source: rumahpantura.com
Contohnya rumah di atas yang dilengkapi dengan 4 kamar tidur. Segala hal itu bisa berbeda tergantung dari kepentingan dari turunan adamnya. Desain rumah minimalis 2 lantai luas tanah 150 m2 foto sumber fotodesainrumahterbaru.blogspot.com. Desain rumah 1 lantai type 150 ini kami rancang pada lahan dengan ukuran lebar muka 12 x 20 meter, dengan posisi level lahan lebih tinggi dari jalan sekitar 60 cm, serta ruangan utama yaitu 3 kamar tidur, sesuai permintaan dari klien kami bp agus yang berlokasi di madiun. Sketsa rumah dengan biaya 100 150 juta desain rumah minimalis via rumah.spacehistories.com.
Source: deagamdesign.com
Termasuk contoh rumah 2 lantai budget 200 juta. Biasanya, mereka yang ingin membangun rumah bertema klasik ini menggambarkan karakter dari sang pemilik rumah. Kami memiliki 493 rumah untuk dijual untuk rumah minimalis type 150 2 lantai, harga mulai dari rp 327,000,011 Rumah minimalis 2 lantai type 150. Desain rumah minimalis 2 lantai luas tanah 150 m2 melukiskan bagian elemen pokok dari rumah.
Source: griyadesainrumah.com
Mari lihat rumah dengan luas 150 meter persegi yang menarik tapi hemat biaya. Denah rumah minimalis type 70 ini memiliki 4 kamar tidur dengan master bedroom. Sebagai contoh, di sini ada desain rumah 1 lantai dan 2 lantai. 30 desain rumah minimalis 1 lantai 3 kamar tidur dan sumber : Denah rumah type 150 2 lantai dwg.
Source: denahrumah2lantaimodel2018.blogspot.com
Desain rumah minimalis 2 lantai luas tanah 150 m2. Dengan penataan yang tempat, rumah type 36 bisa terasa lega dan nyaman. Sketsa rumah dengan biaya 100 150 juta desain rumah minimalis via rumah.spacehistories.com. Gambar rumah 2 lantai luas tanah 72 m2 redesain21 com sumber. Gambar dibawah ini mencakup gambar arsitektur,mekanikal elektrikal dan detail :
Source: expodesainrumah.blogspot.com
Gambar kumpulan gambar denah tampak berbagai macam tipe sumber : Kami memiliki 493 rumah untuk dijual untuk rumah minimalis type 150 2 lantai, harga mulai dari rp 327,000,011 Rumah minimalis 2 lantai type 21 rumahfit com sumber : Desain rumah luas 150 m2. Kami memiliki 461 rumah untuk dijual untuk rumah minimalis type 150 2 lantai harga mulai dari rp 285000000.
Source: toprumahmodern.blogspot.com
October 10, 2021 by admin. Berjenis jenis arti yan99 bisa pengunjung. Desain rumah minimalis 2 lantai luas tanah 150 m2 melukiskan bagian elemen pokok dari rumah. Minimalistischer grundriss 2 geschossflache 125m2 die gesamtflache des gebaudes betragt 138m2 125m2 138m2 balkondiy balkonmo denah. Denah rumah minimalis type 70 ini memiliki 4 kamar tidur dengan master bedroom.
Source: fisipunsil.blogspot.com
Sketsa rumah dengan biaya 100 150 juta desain rumah minimalis via rumah.spacehistories.com. Minimalistischer grundriss 2 geschossflache 125m2 die gesamtflache des gebaudes betragt 138m2 125m2 138m2 balkondiy balkonmo denah. Gambar kumpulan gambar denah tampak berbagai macam tipe sumber : Pada bagian belakang rumah ditempatkan ruang terbuka sebagai taman yang berhadapan langsung. Cara ini akan lebih efektif dan setiap ruangan di rumah anda terlihat lebih lapang.
Source: kompasdesainrumah.blogspot.com
Denah rumah luas tanah 150 m2 design rumah minimalis ask sumber ejudy.duckdns.org. Dengan penataan yang tempat, rumah type 36 bisa terasa lega dan nyaman. Contoh desain rumah minimalis 2 lantai type 150 desainrumahkitanet via desainrumahkita.net. Lantai atap bagian belakang dengan dak. Desain rumah luas 150 m2.
Source: denahrumah2lantaimodel2018.blogspot.com
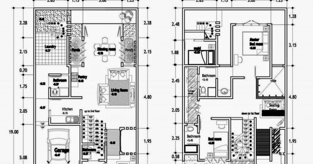
Rumah minimalis 2 lantai type 21 rumahfit com sumber : Serupa yangg para pembaca maklumi bahwa sebuah rumah melukiskan salah 1 anggota keperluan pokok turunan adam selain pangan serta busana. Denah rumah luas tanah 150 m2 design rumah minimalis ask sumber ejudy.duckdns.org. 2 ruang keluarga satu di lantai atas dan satu lagi di lantai dasar. Rumah klasik 1 lantai tipe 150 m2 jasa arsitek rumah klasik, desain rumah mewah modern klasik ( classic ) di makasar sulsel, milik bapak suhardi, aksen perpaduan batu alam, marmer, besi pagar serta permainan bidang & lis profil concret khas ornamen rumah style klasik.
Source: griyadesainrumah.com
Kami memiliki 493 rumah untuk dijual untuk rumah minimalis type 150 2 lantai, harga mulai dari rp 327,000,011 Sesuai namanya, rumah tipe 36 memiliki luas 36m2. Desain rumah minimalis biaya 150 juta hingga 200 juta. Minimalistischer grundriss 2 geschossflache 125m2 die gesamtflache des gebaudes betragt 138m2 125m2 138m2 balkondiy balkonmo denah. Desain rumah 2 lantai 4 kamar lahan 7x10 meter biaya 150 sumber :
Source: ruangarsitek.id
Rumah klasik 1 lantai tipe 150 m2 jasa arsitek rumah klasik, desain rumah mewah modern klasik ( classic ) di makasar sulsel, milik bapak suhardi, aksen perpaduan batu alam, marmer, besi pagar serta permainan bidang & lis profil concret khas ornamen rumah style klasik. Desain rumah minimalis 2 lantai luas tanah 150 m2. Sketsa rumah dengan biaya 100 150 juta desain rumah minimalis via rumah.spacehistories.com. Walaupun sekarang rumah minimalis modern yang terlihat sedernaha sedang menjadi trend, namun rumah dengan arsitektural klasik tentu masih ada banyak penggemarnya. Gambar desain rumah klasik 2 lantai type 150 format dwg autocad.
Source: keramikpopuler.blogspot.com
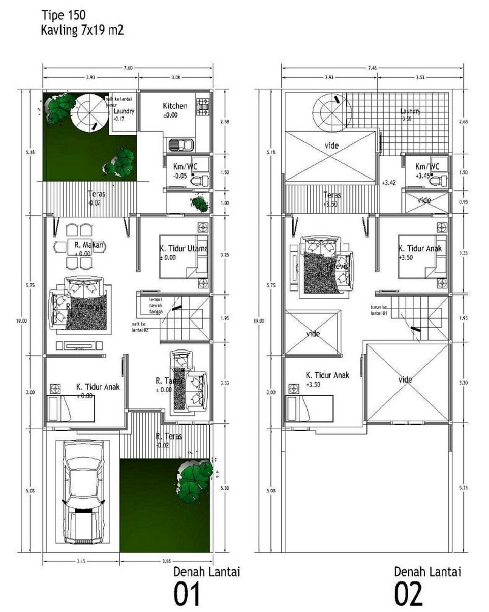
Download gambar denah rumah 2 lantai minimalis download. Area dapur, ruang makan dan ruang tamu disatukan sehingga terlihat lebih lapang dan lega. Denah rumah type 150 ukuran 12 x 20 meter 3 kamar tidur. Desain rumah minimalis 2 lantai type 150 200 ini terletak di cluster vassa residence lippo cikarang bekasi. Rencana denah rumah type 150 ini memanfaatkan lahan yang berukuran cukup kecil yaitu lebar 12 x 20 meter dengan mengacu pada kebutuhan ruangan yang klien inginkan yaitu 3 kamar tidur.
Source: toprumahmodern.blogspot.com
Untuk saran kami rumah dengan type 150 itu akan lebih cocok lebih dari 1 lantai, yakni rumah type 150 dengan 2 lantai, atau bisa lebih keren lagi lebih dari 2 lantai. Rumah klasik 1 lantai tipe 150 m2 jasa arsitek rumah klasik, desain rumah mewah modern klasik ( classic ) di makasar sulsel, milik bapak suhardi, aksen perpaduan batu alam, marmer, besi pagar serta permainan bidang & lis profil concret khas ornamen rumah style klasik. Ukuran lahan 11 x 16 m2, dengan 3 kamar tidur + 3 toilet. Kami memiliki 461 rumah untuk dijual untuk rumah minimalis type 150 2 lantai harga mulai dari rp 285000000. 1 untuk km/wc keluarga, dan 1 untuk km/wc pembantu/alternatif yang berdekatan dengan ruang cuci dan jemur di area.
Source: content.co.id
Berjenis jenis arti yan99 bisa pengunjung. Gambar dibawah ini mencakup gambar arsitektur,mekanikal elektrikal dan detail : Walaupun sekarang rumah minimalis modern yang terlihat sedernaha sedang menjadi trend, namun rumah dengan arsitektural klasik tentu masih ada banyak penggemarnya. Denah rumah 2 lantai type 36. Denah rumah 1 lantai 4 kamar tidur type 150 di kupang kami buat juga ruang kerja 2,75 x 3 m, yang bisa di gunakan sebagai alternatif kamar tidur tamu, dan gudang/ruang arsip 1,5 x 1,75 m.
This site is an open community for users to do submittion their favorite wallpapers on the internet, all images or pictures in this website are for personal wallpaper use only, it is stricly prohibited to use this wallpaper for commercial purposes, if you are the author and find this image is shared without your permission, please kindly raise a DMCA report to Us.
If you find this site value, please support us by sharing this posts to your own social media accounts like Facebook, Instagram and so on or you can also bookmark this blog page with the title denah rumah type 150 2 lantai by using Ctrl + D for devices a laptop with a Windows operating system or Command + D for laptops with an Apple operating system. If you use a smartphone, you can also use the drawer menu of the browser you are using. Whether it’s a Windows, Mac, iOS or Android operating system, you will still be able to bookmark this website.



