Denah Rumah Lebar 12 Meter. Lihat karya terbaru lainnya : Desain rumah type 60 model minimalis sederhana modern terbaru. Kalau begitu simak terus artikel ini. Desain rumah klasik 3.5 lantai ibu irawati di tebet, jakarta selatan.
20 Contoh Denah Rumah Lebar 7 Meter Panjang 12 Meter From dekorasirumah.id
Akan tetapi kita juga dihadapkan dengan realita semakin tingginya harga tanah dan rumah dan semakin sempitnya lahan yang disediakan untuk perumahan. Lihat karya terbaru lainnya : Kali ini adalah contoh desain untuk perumahan dengan type kisaran 50. Tampak depan rumah minimalis lebar 12 meter. Denah rumah ukuran 8x12 meter 3 kamar tidur 2 lantai tampak depan panjang 12 meter adalah bukan ukuran yang lazim untuk lebar lahan 8 meter umumnya lahan dengan lebar 8 m memiliki panjang minimal 15 meter dan yang paling banyaknya berukuran panjang 18 meter. Kita mulai dari desain tampak depan rumah 1 lantai.
Apr 07 2017 desain rumah type 120 lebar 12 meter 1 lantai minimalis ini merupakan proyek desain karya terbaru gdr sesuai pesanan untuk klien kami bp.
Desain rumah lebar depan 12 meter. Desain rumah type 120 lebar 12 meter 1 lantai minimalis ini merupakan proyek desain karya terbaru gdr sesuai pesanan untuk klien kami bp. Desain rumah modern 3 lantai bapak mathius di makassar, sulawesi selatan. Denah rumah 1 lantai type 65 lebar 8 meter. Lihat karya terbaru lainnya : Kita mulai dari desain tampak depan rumah 1 lantai.
Source: gambar-rumah-idaman.com
Bagi anda yang sedang mencari desain rumah type 120, sangat tepat anda mengunjungi salah satu karya kami ini, semoga bisa menjadi refrensi bermanfaat untuk hunian. Untuk carport bisa kita bangun memanjang dengan lebar 3 meter, sehingga bisa muat 2 mobil. 7 ide tangga rumah idaman. Menghitung biaya bangun rumah minimalis 3 kamar tidur 2021. Denah rumah 1 lantai type 65 lebar 8 meter.
Source: gambar-rumah-idaman.com
May 23 2020 desain rumah minimalis 1 lantai lebar 6 meter krem kotak. Asad khalimi yang berlokasi di ambon, maluku. Desain rumah minimalis lebar 4 meter via desainrumahminimalis321.blogspot.com membuat denah rumah tipe 36 diatas lahan 4x12 meter majalah rumah via majalahrumah.com terbaru denah rumah 4 x 12 tahun 2016 rumah minimalis cat putih via rumahminimaliscatputih2016.blogspot.com Perumahan minimalis sederhana type 50 an. Desain rumah klasik 3.5 lantai ibu irawati di tebet, jakarta selatan.
Source: dekorasirumah.id
Di bawah ini kami sajikan beberapa denah dengan lebar 4 meter yang bisa anda jadikan referensi. Bagi anda yang sedang mencari desain rumah type 120, sangat tepat anda mengunjungi salah satu karya kami ini, semoga bisa menjadi refrensi bermanfaat untuk hunian. 70 desain rumah minimalis lebar 5 meter desain rumah. Lahan rumah lebar 6 meter dan panjang 20 meter ini termasuk ke dalam ukuran yang tidak begitu besar dan lahan tersebut yang kerap menggunakan gaya minimalis, baik itu satu lantai atau pun dua lantai. Apr 07 2017 desain rumah type 120 lebar 12 meter 1 lantai minimalis ini merupakan proyek desain karya terbaru gdr sesuai pesanan untuk klien kami bp.
Source: dekorasirumah.id
Bagi anda yang sedang mencari desain rumah type 120, sangat tepat anda mengunjungi salah satu karya kami ini, semoga bisa menjadi refrensi bermanfaat untuk hunian. Contoh desain rumah minimalis lebar 8 meter yang akan ditampilkan dalam artikel ini, diharapkan mampu memberikan inspirasi bagi anda yang tengah merencanakan desain rumah idaman anda. Desain rumah modern 3 lantai bapak mathius di makassar, sulawesi selatan. Desain rumah 7 x 12 meter desain rumah luas tanah lebar 7meter panjang 12meter.didesain sedemikian rupa hingga menghasilkan tampak fasad yg minimalis. Tampak depan rumah minimalis lebar 12 meter sebuah rumah yang bagus selalu dikaitkan dengan rumah besar dengan lahan luas dan desain klasik yang mewah.
Source: dekorasirumah.id
Bagi anda yang sedang mencari desain rumah type 120, sangat tepat anda mengunjungi salah satu karya kami ini, semoga bisa menjadi refrensi bermanfaat untuk hunian. Masih dengan contoh denah desain rumah 9x15 untuk denah rumah 2 lantai ini juga memiliki 4 kamar tidur dan 4 kamar amandi. Desain rumah 8 x 12 3 ruang tidur. Desain rumah type 60 model minimalis sederhana modern terbaru. Bangunan ini dibuat lebar 12 meter diatas lahan selebar 17 meter.
Source: gambar-rumah-idaman.com
Desain rumah 7 x 12 meter desain rumah luas tanah lebar 7meter panjang 12meter.didesain sedemikian rupa hingga menghasilkan tampak fasad yg minimalis. Di samping itu, kalau dirancang bersama dengan tepat, ukuran yang kecil amat mungkin semua ruangan di di dalam rumah memperoleh lebih banyak sinar matahari supaya berdampak positif untuk kesehatan. Denah rumah 1 lantai type 65 lebar 8 meter. Tema desain minimalis tropis luas bangunan 10 x 14 meter plus overlapluas tanah 168 x 278 meterbiaya bangun. 20 contoh denah rumah minimalis tipe 60 terbaru design rumah via designrumah.co.id.
Source: dekorasirumah.id
Desain rumah 7 x 12 meter desain rumah luas tanah lebar 7meter panjang 12meter.didesain sedemikian rupa hingga menghasilkan tampak fasad yg minimalis. Akan tetapi kita juga dihadapkan dengan realita semakin tingginya harga tanah dan rumah dan semakin sempitnya lahan yang disediakan untuk perumahan. Lebar depan 12 meter paket desain jadi rumah luas 54 m2 lebar depan 12 kode 12 01 menampilkan 1 sampai 1 dari 1 1 halaman rancang reka ruang find us jalan wonosari km 6 5 yogyakarta demblaksari rt 04 no 281 kalangan. Desain rumah ini mempunyai 3 ruang tidur yang terdiri dari 1 kamar tidur utama, dan 2 kamar tidur anak. Jun 25 2019 desain rumah 1 lantai type 150 ukuran lebar 12 x 20 meter.
Source: dekorasirumah.id
Perumahan minimalis sederhana type 50 an. Apr 07 2017 desain rumah type 120 lebar 12 meter 1 lantai minimalis ini merupakan proyek desain karya terbaru gdr sesuai pesanan untuk klien kami bp. Desain rumah 8 x 12 3 ruang tidur. Asad khalimi yang berlokasi di ambon, maluku. Denah rumah ukuran 8x12 meter 3 kamar tidur 2 lantai tampak depan panjang 12 meter adalah bukan ukuran yang lazim untuk lebar lahan 8 meter umumnya lahan dengan lebar 8 m memiliki panjang minimal 15 meter dan yang paling banyaknya berukuran panjang 18 meter.
Source: dekorasirumah.id
Menghitung biaya bangun rumah minimalis 3 kamar tidur 2021. Denah rumah ukuran 8x12 meter 3 kamar tidur 2 lantai tampak depan panjang 12 meter adalah bukan ukuran yang lazim untuk lebar lahan 8 meter umumnya lahan dengan lebar 8 m memiliki panjang minimal 15 meter dan yang paling banyaknya berukuran panjang 18 meter. Untuk kali ini akan diberikan beberapa desain rumah ukuran 8 x 12 meter. Mendesain rumah lebar 5 meter x 12 meter dengan teknik pencahayaan via youtube.com. Desain rumah type 60 model minimalis sederhana modern terbaru.
Source: digitalportaledu.blogspot.com
Akan tetapi kita juga dihadapkan dengan realita semakin tingginya harga tanah dan rumah dan semakin sempitnya lahan yang disediakan untuk perumahan. Yang pertama adalah kelompok kamar tidur. Ruang tamu ukuran cukup besar 4 x 3,5 m, dengan akses keluar masuk melalui teras depan 4 x 2 m. Desain rumah type 60 model minimalis sederhana modern terbaru. Desain rumah 7 x 155 meter desain rumah minimalis modern via s40studio.blogspot.com.
Source: contoh-surat.com
Di bawah ini kami sajikan beberapa denah dengan lebar 4 meter yang bisa anda jadikan referensi. Masih dengan contoh denah desain rumah 9x15 untuk denah rumah 2 lantai ini juga memiliki 4 kamar tidur dan 4 kamar amandi. Rumah lebar 8 meter model semi mediterania. Rumah adalah kebutuhan primer kita sebagai manusia. Denah rumah ukuran 5x12 meter 2 kamar tidur 1 lantai tampak depan referensi denah denah kita pada artikel ini adalah denah denah denan ukuran lebar 5 meter dan panjang 12 meter memiliki 2 kamar tidur dan 1 lantai bangunan.
Source: gambar-rumah-idaman.com
Ukuran ruang dalam rumah idaman. Untuk kali ini akan diberikan beberapa desain rumah ukuran 8 x 12 meter. May 23 2020 desain rumah minimalis 1 lantai lebar 6 meter krem kotak. Desain rumah lebar 8 meter lengkap dengan ukurannya 8×20 1 lantai 8×8 8×9 8×25 3 kamar tidur tanpa garasi panjang 12 15 meter minimalis lengkap. 20 contoh denah rumah minimalis tipe 60 terbaru design rumah via designrumah.co.id.
Source: gambar-rumah-idaman.com
Referensi denah rumah minimalis kita berikutnya adalah denah dengan ukuran lahan lebar 12 meter dengan panjang 25 meter dengan 5 buah kamar tidur dan pada 2 lantai bangunan. Rumah adalah kebutuhan primer kita sebagai manusia. Akan tetapi kita juga dihadapkan dengan realita semakin tingginya harga tanah dan rumah dan semakin sempitnya lahan yang disediakan untuk perumahan. Desain rumah type 60 model minimalis sederhana modern terbaru. Denah rumah ini sebenarnya sangat simple, terbagi menjadi 3 kelompok ruangan.
Source: gambar-rumah-idaman.com
16.sketsa denah desain rumah 4x12 bisa menginspirasi kamu yang ingin membangun rumah dengan tanah berukuran 4 meter x 12 meter yang minimalis sketsa denah desain rumah 4x12 17. Masih dengan contoh denah desain rumah 9x15 untuk denah rumah 2 lantai ini juga memiliki 4 kamar tidur dan 4 kamar amandi. Di bawah ini kami sajikan beberapa denah dengan lebar 4 meter yang bisa anda jadikan referensi. Lebar depan 12 meter paket desain jadi rumah luas 54 m2 lebar depan 12 kode 12 01 menampilkan 1 sampai 1 dari 1 1 halaman rancang reka ruang find us jalan wonosari km 6 5 yogyakarta demblaksari rt 04 no 281 kalangan. Denah rumah hook lebar 12 meter lantai 1.
Source: dekorasirumah.id
Di bawah ini kami sajikan beberapa denah dengan lebar 4 meter yang bisa anda jadikan referensi. Denah rumah ini sebenarnya sangat simple, terbagi menjadi 3 kelompok ruangan. Jun 25 2019 desain rumah 1 lantai type 150 ukuran lebar 12 x 20 meter. Dalam menentukan ukuran maupun tata letak antar ruangan denah rumah 3 kamar tidur ukuran 14×12 meter ini kami usahakan agar tercipta pola ruangan yang nyaman dan efisien dalam kegunaannya, sehingga rancangan kami ini. Untuk kali ini akan diberikan beberapa desain rumah ukuran 8 x 12 meter.
Source: gambar-rumah-idaman.com
20 contoh denah rumah minimalis tipe 60 terbaru design rumah via designrumah.co.id. Desain rumah type 60 model minimalis sederhana modern terbaru. Kalau begitu simak terus artikel ini. Masih dengan contoh denah desain rumah 9x15 untuk denah rumah 2 lantai ini juga memiliki 4 kamar tidur dan 4 kamar amandi. Perumahan minimalis sederhana type 50 an.
Source: gambar-rumah-idaman.com
Desain rumah modern 3 lantai bapak mathius di makassar, sulawesi selatan. Lebar depan 12 meter paket desain jadi rumah luas 54 m2 lebar depan 12 kode 12 01 menampilkan 1 sampai 1 dari 1 1 halaman rancang reka ruang find us jalan wonosari km 6 5 yogyakarta demblaksari rt 04 no 281 kalangan. Bagi anda yang sedang mencari desain rumah type 120, sangat tepat anda mengunjungi salah satu karya kami ini, semoga bisa menjadi refrensi bermanfaat untuk hunian. Tema desain minimalis tropis luas bangunan 10 x 14 meter plus overlapluas tanah 168 x 278 meterbiaya bangun. 7 ide tangga rumah idaman.
Source: dekorasirumah.id
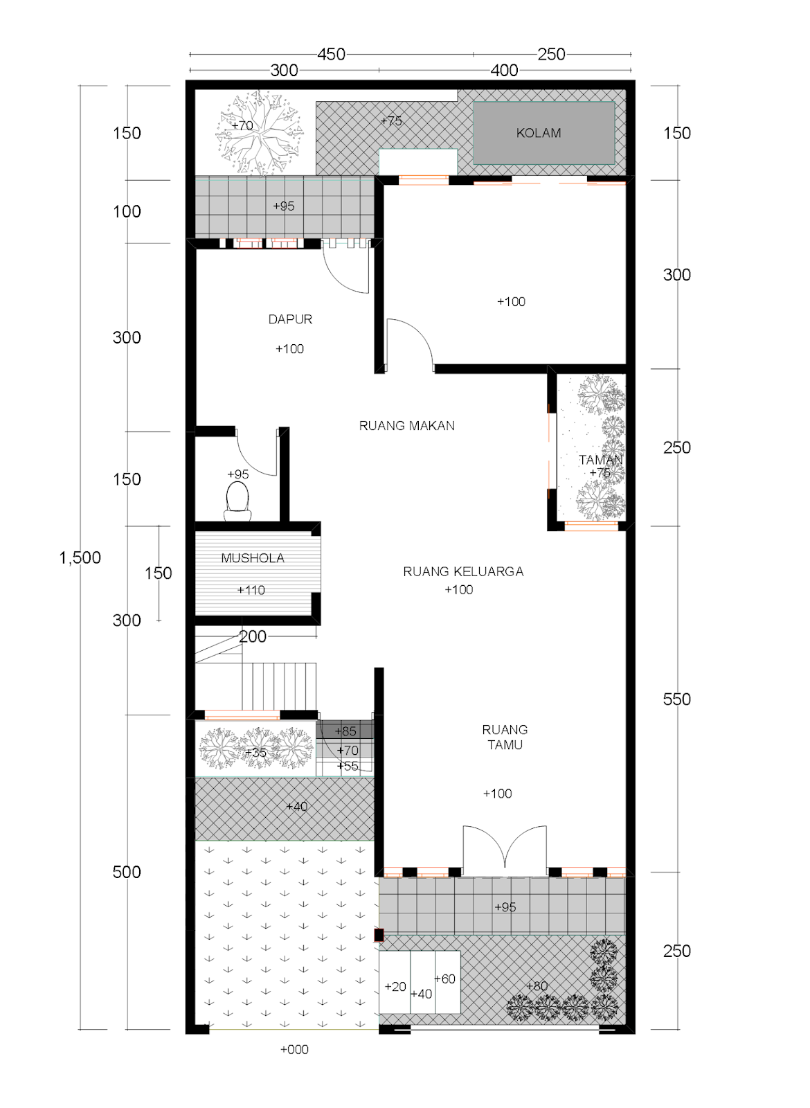
Tampak depan rumah minimalis lebar 12 meter. Denah rumah ukuran 10 x 12 meter denah rumah ukuran 10 x 12 meter. Contoh denah rumah minimalis kita berikutnya adalah denah dengan ukuran lahan lebar 12 meter dengan panjang 20 meter dengan 4 buah kamar tidur dan pada 1 lantai bangunan. Desain rumah 7 x 12 meter desain rumah luas tanah lebar 7meter panjang 12meter.didesain sedemikian rupa hingga menghasilkan tampak fasad yg minimalis. Untuk kali ini akan diberikan beberapa desain rumah ukuran 8 x 12 meter.
This site is an open community for users to do submittion their favorite wallpapers on the internet, all images or pictures in this website are for personal wallpaper use only, it is stricly prohibited to use this wallpaper for commercial purposes, if you are the author and find this image is shared without your permission, please kindly raise a DMCA report to Us.
If you find this site helpful, please support us by sharing this posts to your favorite social media accounts like Facebook, Instagram and so on or you can also bookmark this blog page with the title denah rumah lebar 12 meter by using Ctrl + D for devices a laptop with a Windows operating system or Command + D for laptops with an Apple operating system. If you use a smartphone, you can also use the drawer menu of the browser you are using. Whether it’s a Windows, Mac, iOS or Android operating system, you will still be able to bookmark this website.




