Denah Rumah Dwg. Download now menggambar 2d autocad desain rumah 006 denah. Desain rumah minimalis 1 lantai. Download desain rumah autocad gratis. Download now 63 desain rumah minimalis dwg desain rumah minimalis terbaru.
50 Denah Rumah 2 Lantai File Dwg Yang Menawan! From keramiksetengah.blogspot.com
Desain rumah type 60 model minimalis, sederhana, modern terbaru Gambar denah rumah tipe 36 l kursus privat autocad. Daftar gambar kerja struktur bangunan rumah tinggal type 45 jpg & dwg autocad : Rumah tinggal type 36 72 format dwg file autocad referensi gambar autocad tropis. Download desain rumah autocad gratis. Perancangan arsitektur akhir ini mencoba mendesain rumah sakit umum.
Denah rumah gedung bertingkat dwg.
Download this image for free in hd resolution the choice download button below. Jangan demikian peduli dengan tren terbaru, tetapi apa yang menghasilkan anda merasa baik. Denah rumah 2 lantai free download. Dengan gambar desain rumah minimalis yang baik serta memiliki resolusi 1001x799, setidaknya dapat terlihat jelas guna memenuhi desain rumah yang sedang anda ingin ciptakan. Download 26 file denah rumah lengkap format dwg autocad assalamualaikum wrwb terimakasih telah berkunjung ke blog kami pada kesempatan kali ini kami akan berbagi file gambar denah rumah dengan format dwg autocad. Download denah rumah 2 lantai lengkap dwg memiliki model rumah minimalis 2 lantai sederhana yang mungil dan nyaman adalah kebutuhan yang tidak bisa dilewatkanterkadang ini menjadi impian anda saat anda belum mampu membeli atau membangun sebuah rumah.
Source: denahrumahtype362018.blogspot.com
Desain rumah type 60 model minimalis, sederhana, modern terbaru Download denah rumah lengkap dwg. Namun sebutan untuk cover rumah tersebut adalah pelataran. Denah rumah 2 lantai free download. Rumah tipe ini bisa dikreasikan atau dikembangkan sesuai kebutuhan dengan beragam desain untuk 1 lantai maupun 2 lantai.
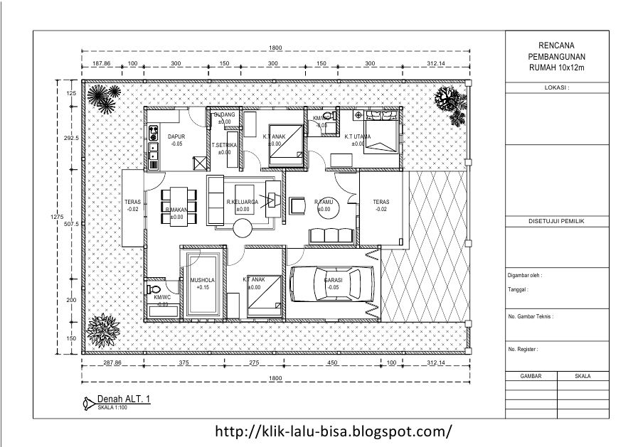
Source: klik-lalu-bisa.blogspot.com
Download 26 file denah rumah lengkap format dwg autocad assalamualaikum wrwb terimakasih telah berkunjung ke blog kami pada kesempatan kali ini kami akan berbagi file gambar denah rumah dengan format dwg autocad. Gambar denah lantai 1.dwg : File desain rumah 2 lantai 10×14 meter.dwg yang anda unduh (download). Segera kunjungi website jasa desain rumah indo design center. Download denah rumah type 45 dwg arsip jasa desain rumah.
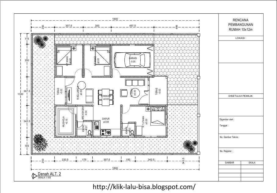
Source: klik-lalu-bisa.blogspot.com
Desain rumah mewah 2 lantai 14×23 meter.dwg adalah merupakan salah satu contoh yang ada pada umumnya diterapkan pada pekerjaan terkait. Gambar denah rumah tipe 36 l kursus privat autocad. Jun 28 2017 download denah rumah lengkap dwg. Gambar kerja strutur denah pondasi, sloof dan kolom gambar kerja strutur denah balok dan ring balok File desain rumah minimalis tipe 45dwg tersedia dalam format dwg autocad dimana file.
Source: rumahminimaliskuu.blogspot.com
Kalian bisa download secara gratis alias tidak berbayar. Lebih dari apa pun membuat dapur kamu sendiri adalah di sesi atas daftar. Menentukan model rumah minimalis yang menyuguhkan bentuk yang menawan dengan model arsitek modern dan membuat ruangan yang cukup luas, tidak hanya itu pemakaian material bahan bangunan juga tidak boleh sembarangan. Desain rumah minimalis tipe 45dwg adalah merupakan salah satu contoh yang ada pada umumnya diterapkan pada pekerjaan terkait. Gambar kerja strutur denah pondasi, sloof dan kolom gambar kerja strutur denah balok dan ring balok
Source: sisipil.com
Bagi para pembaca yang sedang mencari referensi desain rumah kost lengkap dengan autocad dwg sehingga. Tipe yang dimaksud adalah tipe 21, 36, 45, 54, 60, dan 70. File desain rumah mewah 2 lantai 14×23 meter.dwg. Jun 28 2017 download denah rumah lengkap dwg. Download denah rumah lengkap dwg.
Source: dlautocad.blogspot.com
Disamping itu rumah juga merupakan tempat berlangsungnya proses sosialisasi pada saat individu diperkenalkan pada norma dan adat kebiasaan yang berlaku di dalam. Download 26 file denah rumah lengkap format dwg (autocad) assalamualaikum wr.wb, terimakasih telah berkunjung ke blog kami, pada kesempatan kali ini kami akan berbagi file gambar denah rumah dengan format dwg (autocad). Tipe yang dimaksud adalah tipe 21, 36, 45, 54, 60, dan 70. Download file autocad dwg gambar diatas klik disini. 41 download desain rumah autocad gratis info terpopuler.
Source: hontoh.blogspot.com
Denah rumah 2 lantai free download. Desain rumah 3 lantai dan gambar kerja dwg. Kebutuhan download desain rumah autocad gratis sangat populer di indonesia. Rumah tipe ini bisa dikreasikan atau dikembangkan sesuai kebutuhan dengan beragam desain untuk 1 lantai maupun 2 lantai. If you do not find the exact resolution you are looking for, then go for a native or higher resolution.
Source: keramiksetengah.blogspot.com
Kami tidak hanya memberikan anda denah rumah lengkap dwg akan tetapi kamipun memiliki berbagai macam kumpulan file gambar kerja. Gambar kerja strutur denah pondasi, sloof dan kolom gambar kerja strutur denah balok dan ring balok Sebelumnya rundingkan dulu dengan arsitek tentang bagaimana. Download file autocad dwg gambar diatas klik disini. Tak hanya file gambar jpg diatas yang akan anda dapatkan.
Source: kanopitop.com
Desain rumah minimalis 1 lantai. Download desain rumah berbagai tipe file dwg autocad terlengkap. Denah rumah 2 lantai free download. Denah rumah susun dwg 2021 dapatkan ragam kumpulan ide untuk denah rumah susun dwg 2021 dari berbagai model melalui situs designarsitektur.com salah satunya bisa anda dapatkan dibawah ini: Download rumah 186105m bestek lengkap dwg autocad.
Source: dapurcorminimalis.blogspot.com
Download kumpulan gambar desain rumah tinggal format dwg (file autocad) desain rumah sebaiknya didasari oleh keadaan lingkungan sekitar, dengan begitu akan dihasilkan hunian yang ideal, nyaman, dan sehat bagi penggunanya serta hemat energi. Seperti janji saya kemarin saya akan membagikan file dwg lagi, file dwg yang saya bagikan adalah file dwg gambar kerja rumah. Daftar gambar kerja struktur bangunan rumah tinggal type 45 jpg & dwg autocad : Jangan demikian peduli dengan tren paling baru, tetapi apa yang menghasilkan anda merasa baik. Download this image for free in hd resolution the choice download button below.
Source: python-belajar.github.io
Denah rumah gedung bertingkat dwg. Bagi anda yang sedang mencari kumpulan file dwg. Berbicara mengenai tipe hunian untuk rumah tapak berdasarkan ukurannya, umumnya developer membedakannya ke dalam 6 tipe. File desain rumah minimalis tipe 45dwg tersedia dalam format dwg autocad dimana file. Download 26 file denah rumah lengkap format dwg (autocad) assalamualaikum wr.wb, terimakasih telah berkunjung ke blog kami, pada kesempatan kali ini kami akan berbagi file gambar denah rumah dengan format dwg (autocad).
Source: draftstudiorr.com
Denah kusen gambar kerja bestek rumah type 50 file autocad dwg. Jan 13 2021 38 pintu geser aluminium dwg gambar minimalis dari sini kami akan menerangkan update mengenai pintu geser yang trend waktu ini dan populer. Denah kusen gambar kerja bestek rumah type 50 file autocad dwg. Desain rumah minimalis tipe 45dwg adalah merupakan salah satu contoh yang ada pada umumnya diterapkan pada pekerjaan terkait. Denah rumah gedung bertingkat dwg.
Source: asdar.id
Jangan demikian peduli dengan tren paling baru, tetapi apa yang menghasilkan anda merasa baik. File desain rumah mewah 2 lantai 14×23 meter.dwg. Denah rumah gedung bertingkat dwg. File desain rumah 2 lantai 10×14 meter.dwg yang anda unduh (download). Namanya juga pelataran, tidak mungkin berada di belakang rumah.
Source: asdar.id
Download now jual file dwg autocad lengkap kota samarinda desain rumah tokopedia. Download 26 file denah rumah lengkap format dwg (autocad) assalamualaikum wr.wb, terimakasih telah berkunjung ke blog kami, pada kesempatan kali ini kami akan berbagi file gambar denah rumah dengan format dwg (autocad). Berikut merupakan gambar denah layout gambar denah lantai 1. Daftar gambar kerja struktur bangunan rumah tinggal type 45 jpg & dwg autocad : File desain rumah 2 lantai 10×14 meter.dwg yang anda unduh (download).
Source: sisipil.com
Bagi para pembaca yang sedang mencari referensi desain rumah kost lengkap dengan autocad dwg sehingga. Dengan gambar desain rumah minimalis yang baik serta memiliki resolusi 1001x799, setidaknya dapat terlihat jelas guna memenuhi desain rumah yang sedang anda ingin ciptakan. Download gambar denah rumah 2 lantai minimalis. Desain rumah dwg gratis tetap terkesan elegan meski hanya menampilkan elemen seperlunya dan sesederhana mungkin. Berikut merupakan gambar denah layout gambar denah lantai 1.
Source: kanopitop.com
File desain rumah minimalis tipe 45dwg tersedia dalam format dwg autocad dimana file. Kami tidak hanya memberikan anda denah rumah lengkap dwg akan tetapi kamipun memiliki berbagai macam kumpulan file gambar kerja. Download denah rumah lengkap dwg. Gambar denah rumah tipe 36 l kursus privat autocad. Kebutuhan download desain rumah autocad gratis sangat populer di indonesia.
Source: draftstudiorr.com
Berbicara mengenai tipe hunian untuk rumah tapak berdasarkan ukurannya, umumnya developer membedakannya ke dalam 6 tipe. Menentukan model rumah minimalis yang menyuguhkan bentuk yang menawan dengan model arsitek modern dan membuat ruangan yang cukup luas, tidak hanya itu pemakaian material bahan bangunan juga tidak boleh sembarangan. Gambar denah rumah tipe 36 l kursus privat autocad. Download now jual file dwg autocad lengkap kota samarinda desain rumah tokopedia. Jan 13 2021 38 pintu geser aluminium dwg gambar minimalis dari sini kami akan menerangkan update mengenai pintu geser yang trend waktu ini dan populer.
Source: denahose.blogspot.com
Sebelumnya rundingkan dulu dengan arsitek tentang bagaimana. Segera kunjungi website jasa desain rumah indo design center. Arsitek makassar takalar denah rumah tipe 90 lahan 225 m2 jpg 1600 794 denah rumah. Download denah rumah type 45 dwg arsip jasa desain rumah. Download kumpulan gambar desain rumah tinggal format dwg (file autocad) desain rumah sebaiknya didasari oleh keadaan lingkungan sekitar, dengan begitu akan dihasilkan hunian yang ideal, nyaman, dan sehat bagi penggunanya serta hemat energi.
This site is an open community for users to do sharing their favorite wallpapers on the internet, all images or pictures in this website are for personal wallpaper use only, it is stricly prohibited to use this wallpaper for commercial purposes, if you are the author and find this image is shared without your permission, please kindly raise a DMCA report to Us.
If you find this site adventageous, please support us by sharing this posts to your favorite social media accounts like Facebook, Instagram and so on or you can also bookmark this blog page with the title denah rumah dwg by using Ctrl + D for devices a laptop with a Windows operating system or Command + D for laptops with an Apple operating system. If you use a smartphone, you can also use the drawer menu of the browser you are using. Whether it’s a Windows, Mac, iOS or Android operating system, you will still be able to bookmark this website.





