Denah Rumah Autocad Pdf. Bagi anda yang sedang mencari kumpulan file dwg rumah tinggal, kami indo design center merupakan tempat yang tepat untuk anda dalam mencari file dwg yang anda butuhkan. File dwg ini merupakan format file bawaan dari software cad, salah satunya yang paling populer adalah autocad. Sebuah buku pasti memiliki cover, begitu juga rumah pasti punya cover. Drafter, desainer, dan arsitek tentu sering berurusan dengan file berformat.dwg.
Tutorial AutoCAD Gambar Kerja Rumah Tinggal Bagian 1 From knowledge.autodesk.com
Simak ulasan terkait rumah minimalis dengan artikel konsep 36+ denah tampak potongan rumah tinggal pdf berikut ini. Tujuan pasar konsumen mereka ialah dua sejoli yang baru menikah. Rumah merupakan bangunan tempat tinggal manusia dan melangsungkan kehidupannya. Download desain rumah minimalis autocad youtube via youtube.com. Ambar bangunan rumah 2 lantai. Desain rumah dengan gaya minimalis diprediksi pada tahun 1920 telah berkembang, tetapi belum sengetren sekarang.
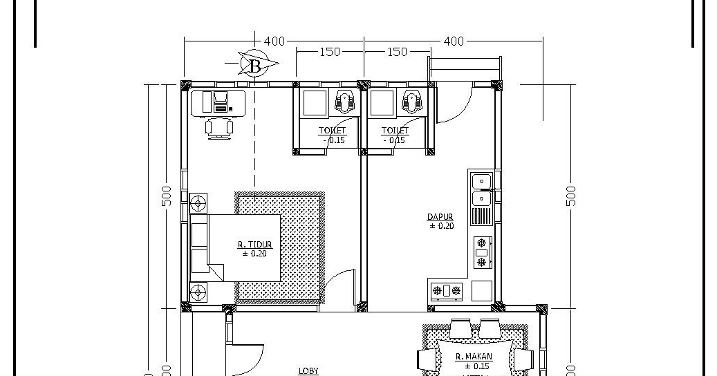
Denah merupakan sebuah peta berukuran kecil yang menunjukkan dan menggambarkan detail lokasi dari suatu bangunan.
Desain rumah dengan gaya minimalis diprediksi pada tahun 1920 telah berkembang, tetapi belum sengetren sekarang. Desain rumah lengkap dengan denah pdf. File dwg ini merupakan format file bawaan dari software cad, salah satunya yang paling populer adalah autocad. Pdf desain rumah gratis jasa desain pusat pelatihan kursus via indodesigncenter.com. Simak ulasan terkait rumah minimalis dengan artikel konsep 36+ denah tampak potongan rumah tinggal pdf berikut ini. Gambar denah rumah tipe 36 l kursus privat autocad.
Source: belajarsemua.github.io
Download desain rumah berbagai tipe file dwg autocad terlengkap. Karen kami mempunyai tim arsitek. Ukuran tanah pada rumah type 21 dipadukan dengan ukuran luas tanah 6m x 10m 60 m2 dan 6m x 12m 72 m2 sehingga disebut rumah type 2160 atau 2172. 21+ denah rumah autocad 2007 denah rumah. Simak ulasan terkait rumah minimalis dengan artikel konsep 36+ denah tampak potongan rumah tinggal pdf berikut ini.
Source: indodesigncenter.com
Pdf desain rumah gratis jasa desain pusat pelatihan kursus via indodesigncenter.com. Tujuan pasar konsumen mereka ialah dua sejoli yang baru menikah. Tipe yang dimaksud adalah tipe 21, 36, 45, 54, 60, dan 70. Kami tidak hanya memberikan anda denah rumah lengkap dwg akan tetapi kamipun memiliki berbagai macam kumpulan file gambar kerja. Download now download file dwg autocad referensi.
Source: ilmusipil.com
Ukuran tanah pada rumah type 21 dipadukan dengan ukuran luas tanah 6m x 10m 60 m2 dan 6m x 12m 72 m2 sehingga disebut rumah type 2160 atau 2172. Drafter, desainer, dan arsitek tentu sering berurusan dengan file berformat.dwg. Download desain rumah berbagai tipe file dwg autocad terlengkap. Rumah minimalis lengkap download now pdf type 45 wasidy cipunagara regency dioda erawan academia edu download now tutorial autocad gambar kerja rumah tinggal bagian 1 denah download now 30 denah rumah type 36 desain minimalis 1 2 lantai. Gambar rumah minimalis 10 x 12 dawn hullender via dawnhullender.blogspot.com.
Source: rancanghunian.blogspot.com
Download now download file dwg autocad referensi. Simak ulasan terkait rumah minimalis dengan artikel konsep 36+ denah tampak potongan rumah tinggal pdf berikut ini. Download now download gambar rumah tinggal 10x12m format dwg file autocad. Karena merupakan format bawaan sotfware, file dwg hanya dapat dibuka di perangkat cad. Nah jika ia tanpa panjang lebar berikut adalah 94+ foto denah rumah file autocad populer :
Source: knowledge.autodesk.com
Rumah merupakan bangunan tempat tinggal manusia dan melangsungkan kehidupannya. Nah jika ia tanpa panjang lebar berikut adalah 94+ foto denah rumah file autocad populer : Download now download file dwg autocad referensi. Apakah anda tertarik dengan contoh denah rumah autocad 2d dengan gambar dibawah ini semoga bisa menjadi pilihan dekorasi dan desain untuk mempercantik rumah andainformasi yang dapat kami sampaikan kali ini terkait denah rumah dengan judul artikel 50 contoh denah rumah autocad 2d terbaru. Sebuah buku pasti memiliki cover, begitu juga rumah pasti punya cover.
Source: eyecatchingent.blogspot.com
Seandainya anda kekurangan referensi berikut ada contoh desain rumah bagian depan yang bisa anda. Download denah rumah type 36 autocad dwg, download denah rumah lengkap dwg, gambar kerja rumah type 36, gambar kerja rumah type 36 pdf, type 60, type 70, langsung ke isi. Simak ulasan terkait rumah minimalis dengan artikel konsep 36+ denah tampak potongan rumah tinggal pdf berikut ini. Download file autocad dwg gambar diatas klik disini. Download denah rumah type 45 dwg arsip jasa desain rumah.
Source: keramikdindingteras.blogspot.com
Bagi anda yang sedang mencari kumpulan file dwg rumah tinggal, kami indo design center merupakan tempat yang tepat untuk anda dalam mencari file dwg yang anda butuhkan. Ukuran tanah pada rumah type 21 dipadukan dengan ukuran luas tanah 6m x 10m 60 m2 dan 6m x 12m 72 m2 sehingga disebut rumah type 2160 atau 2172. Anda mungkin akan memerlukan bantuan perangkat viewer khusus jika tidak. Sebagai bahan referensi dan pembelajaran selanjutnya di postingan kali ini saya akan membagikan contoh gambar kerja desain rumah tinggal minimalis format dwg yang bisa di download. Download desain rumah minimalis autocad youtube via youtube.com.
Source: seon.co.id
Desain rumah layout denah rumah klasik 2 lantai type 120x200 via rumahuni.com. Pdf desain rumah gratis jasa desain pusat pelatihan kursus via indodesigncenter.com. Download desain rumah autocad gratis. Desing rumah minimalis gallery taman minimalis via gallerytamanminimalis.blogspot.com. Berbicara mengenai tipe hunian untuk rumah tapak berdasarkan ukurannya, umumnya developer membedakannya ke dalam 6 tipe.
Source: dekorumah45.blogspot.com
Download buku desain rumah pdf. Nah jika ia tanpa panjang lebar berikut adalah 94+ foto denah rumah file autocad populer : Desain rumah dengan model minimalis diprediksi saat tahun 1920 sudah tumbuh, tetapi belum sengetren saai ini. Tipe yang dimaksud adalah tipe 21, 36, 45, 54, 60, dan 70. Karen kami mempunyai tim arsitek.
Source: keramikdindingteras.blogspot.com
Simak ulasan terkait rumah minimalis dengan artikel konsep 36+ denah tampak potongan rumah tinggal pdf berikut ini. 21+ denah rumah autocad 2007 denah rumah. Desain rumah 7x12m file dwg autocad lengkap. Sebagai bahan referensi dan pembelajaran selanjutnya di postingan kali ini saya akan membagikan contoh gambar kerja desain rumah tinggal minimalis format dwg yang bisa di download. Namun sebutan untuk cover rumah tersebut adalah pelataran.
Source: detiks.github.io
Desain rumah lengkap dengan denah pdf. Rumah merupakan bangunan tempat tinggal manusia dan melangsungkan kehidupannya. Desing rumah minimalis gallery taman minimalis via gallerytamanminimalis.blogspot.com. 63 download desain rumah minimalis format autocad. Drafter, desainer, dan arsitek tentu sering berurusan dengan file berformat.dwg.
Source: knowledge.autodesk.com
Apakah anda tertarik dengan contoh denah rumah autocad 2d dengan gambar dibawah ini semoga bisa menjadi pilihan dekorasi dan desain untuk mempercantik rumah andainformasi yang dapat kami sampaikan kali ini terkait denah rumah dengan judul artikel 50 contoh denah rumah autocad 2d terbaru. Bagi anda yang sedang mencari kumpulan file dwg rumah tinggal, kami indo design center merupakan tempat yang tepat untuk anda dalam mencari file dwg yang anda butuhkan. Berbicara mengenai tipe hunian untuk rumah tapak berdasarkan ukurannya, umumnya developer membedakannya ke dalam 6 tipe. Denah merupakan sebuah peta berukuran kecil yang menunjukkan dan menggambarkan detail lokasi dari suatu bangunan. Download buku desain rumah pdf.
Source: keramikdindingteras.blogspot.com
Bagi anda yang sedang mencari kumpulan file dwg rumah tinggal, kami indo design center merupakan tempat yang tepat untuk anda dalam mencari file dwg yang anda butuhkan. Desain design minimalis rumah type 36 pdf best ideas for home via desainrumahsd.com autocad 2d arsip page 4 of 4 kursus privat autocad 2d 3d di via kursusautocadmedan.com denah type rumah 36 minimalis terbaru populer desain pdf best via desainrumahsd.com kumpulan 50 gambar kerja rumah minimalis format cad dan pdf via. Membuat rumah minimalis dari yang harga paling murah sampai mahal sekalipun. Gambar rumah minimalis 10 x 12 dawn hullender via dawnhullender.blogspot.com. Potongan denah rumah type 45 dan tampaknya, gambar denah rumah type 36 lengkap dengan tampak dan potongan rumah tinggal sederhana pdf skala 1 100.
Source: belajarsemua.github.io
Karena merupakan format bawaan sotfware, file dwg hanya dapat dibuka di perangkat cad. Rumah minimalis lengkap download now pdf type 45 wasidy cipunagara regency dioda erawan academia edu download now tutorial autocad gambar kerja rumah tinggal bagian 1 denah download now 30 denah rumah type 36 desain minimalis 1 2 lantai. Desain rumah dengan model minimalis diprediksi saat tahun 1920 sudah tumbuh, tetapi belum sengetren saai ini. Download denah rumah type 36 autocad dwg, download denah rumah lengkap dwg, gambar kerja rumah type 36, gambar kerja rumah type 36 pdf, type 60, type 70, langsung ke isi. Gambar kerja rumah type 45 pdf download gambar kerja gambar kerja rumah type 36 pdf download denah rumah type 45 autocad bestek gambar kerja type 45 70 sedih jg arsip2 gambar 2d dah pada ilang ini msh nyimpen 1 buat perumahan cuman ya ntu std bgt gpp x x aja ada yg perlu desain denah uk 7 x 15 kumpulan 50 gambar kerja rumah minimalis format.
Source: pagarminimalismewah.blogspot.com
Sebuah buku pasti memiliki cover, begitu juga rumah pasti punya cover. Tipe yang dimaksud adalah tipe 21, 36, 45, 54, 60, dan 70. Download now download gambar rumah tinggal 10x12m format dwg file autocad. Desain rumah dengan model minimalis diprediksi saat tahun 1920 sudah tumbuh, tetapi belum sengetren saai ini. Tapi masalahnya, mempunyai sebuah rumah bukanlah hal yang mudah, untuk mempunyai sebuah rumah yang enak anda membutuhkan banyak biaya , ditambah lagi harga tanah di daerah perkotaan semakin mahal sebab lahannya semakin lama semakin sedikit.
Source: nevermindme-imnoone.blogspot.com
Download desain rumah minimalis autocad youtube via youtube.com. Berbicara mengenai denah tidak akan jauh dari gambar dan bangunan. 63 download desain rumah minimalis format autocad. Rumah merupakan bangunan tempat tinggal manusia dan melangsungkan kehidupannya. Download denah rumah lengkap dwg.
Source: sekitaranrumah.blogspot.com
Namanya juga pelataran, tidak mungkin berada di belakang rumah. Ukuran tanah pada rumah type 21 dipadukan dengan ukuran luas tanah 6m x 10m 60 m2 dan 6m x 12m 72 m2 sehingga disebut rumah type 2160 atau 2172. Rumah minimalis lengkap download now pdf type 45 wasidy cipunagara regency dioda erawan academia edu download now tutorial autocad gambar kerja rumah tinggal bagian 1 denah download now 30 denah rumah type 36 desain minimalis 1 2 lantai. Denah merupakan sebuah peta berukuran kecil yang menunjukkan dan menggambarkan detail lokasi dari suatu bangunan. Download now download file dwg autocad referensi.
Source: keramikdindingteras.blogspot.com
Download desain rumah berbagai tipe file dwg autocad terlengkap. Ambar bangunan rumah 2 lantai. Drafter, desainer, dan arsitek tentu sering berurusan dengan file berformat.dwg. Sebagai bahan referensi dan pembelajaran selanjutnya di postingan kali ini saya akan membagikan contoh gambar kerja desain rumah tinggal minimalis format dwg yang bisa di download. File dwg ini merupakan format file bawaan dari software cad, salah satunya yang paling populer adalah autocad.
This site is an open community for users to share their favorite wallpapers on the internet, all images or pictures in this website are for personal wallpaper use only, it is stricly prohibited to use this wallpaper for commercial purposes, if you are the author and find this image is shared without your permission, please kindly raise a DMCA report to Us.
If you find this site beneficial, please support us by sharing this posts to your preference social media accounts like Facebook, Instagram and so on or you can also bookmark this blog page with the title denah rumah autocad pdf by using Ctrl + D for devices a laptop with a Windows operating system or Command + D for laptops with an Apple operating system. If you use a smartphone, you can also use the drawer menu of the browser you are using. Whether it’s a Windows, Mac, iOS or Android operating system, you will still be able to bookmark this website.



